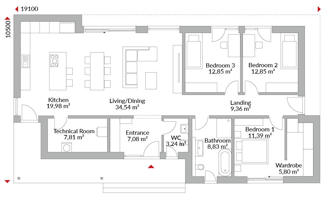
Three-bedroom bungalow with fully covered entrance and elevated front door with glass panel. Additional exterior access to the kitchen. Raised ground floor with taller windows, designed as open-plan kitchen with adjoining living/dining area and sliding doors to the terrace. Hipped roof without overhang, 25° pitch.
*Photo shows building with individual changes.

Floor plans
Complete plan of all floors with area
Welcome to S-Line from Danwood, the next level for quality self-build and design. This exclusive range stands out, not only with its unique architecture, but also with its special functional design, which provides comfort and easy living in every space. Each home in S-Line is characterised by a number of special features to ensure a luxurious living experience.

Friends and family think it’s a beautiful house. We’re very lucky to have such a beautiful home to share with our grandchildren and family. Yes, it’s our forever home, definitely.