Premier class
There is something majestic about this magnificent building. The middle structure towers over everything, almost as if it's floating. This gives the architecture lightness and harmony while revealing the more practical aspects of the covered entrance and terrace.
*Photo shows building with individual changes.

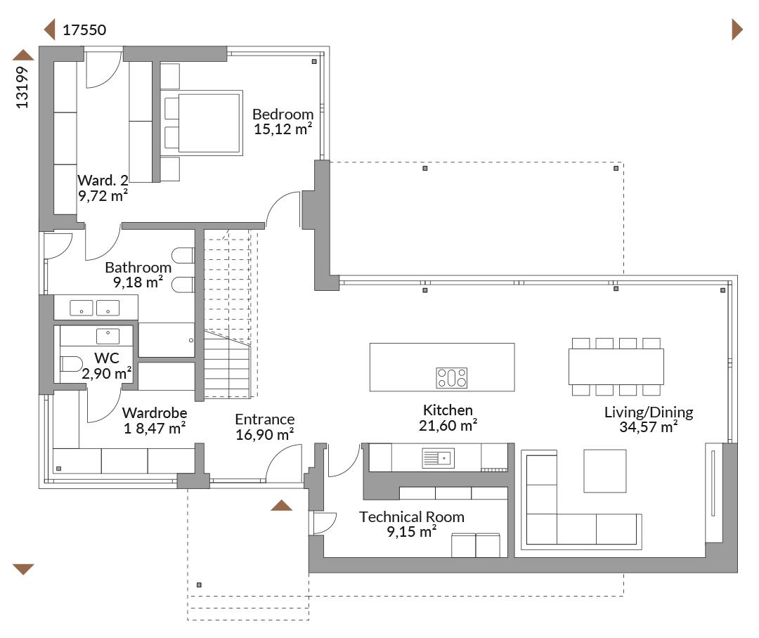
Floor plans
Complete plan of all floors with area

Friends and family think it’s a beautiful house. We’re very lucky to have such a beautiful home to share with our grandchildren and family. Yes, it’s our forever home, definitely.