Two-storey house with a wide entrance roof on the higher front door and a straight corner bay window; terrace partially covered by roof overhang; three bedrooms and hallway on the upper floor; master en-suite bedroom with free-standing bathtub, shower, double sink and separate dressing room; additional second shower room; the raised ground floor is designed with higher windows as an open-plan kitchen/living/dining area with sliding doors to the terrace; separate pantry; guest WC; technical room and hallway with cloakroom; gable roof without roof overhangs; 35° roof pitch.
*Photo shows building with individual changes.

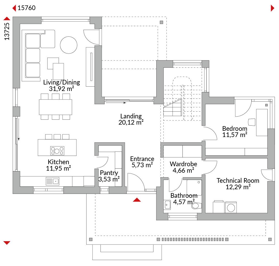
Floor plans
Complete plan of all floors with area
Welcome to S-Line from Danwood, the next level for quality self-build and design. This exclusive range stands out, not only with its unique architecture, but also with its special functional design, which provides comfort and easy living in every space. Each home in S-Line is characterised by a number of special features to ensure a luxurious living experience.

Friends and family think it’s a beautiful house. We’re very lucky to have such a beautiful home to share with our grandchildren and family. Yes, it’s our forever home, definitely.