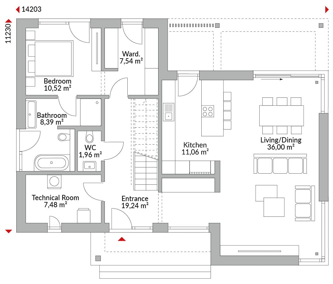
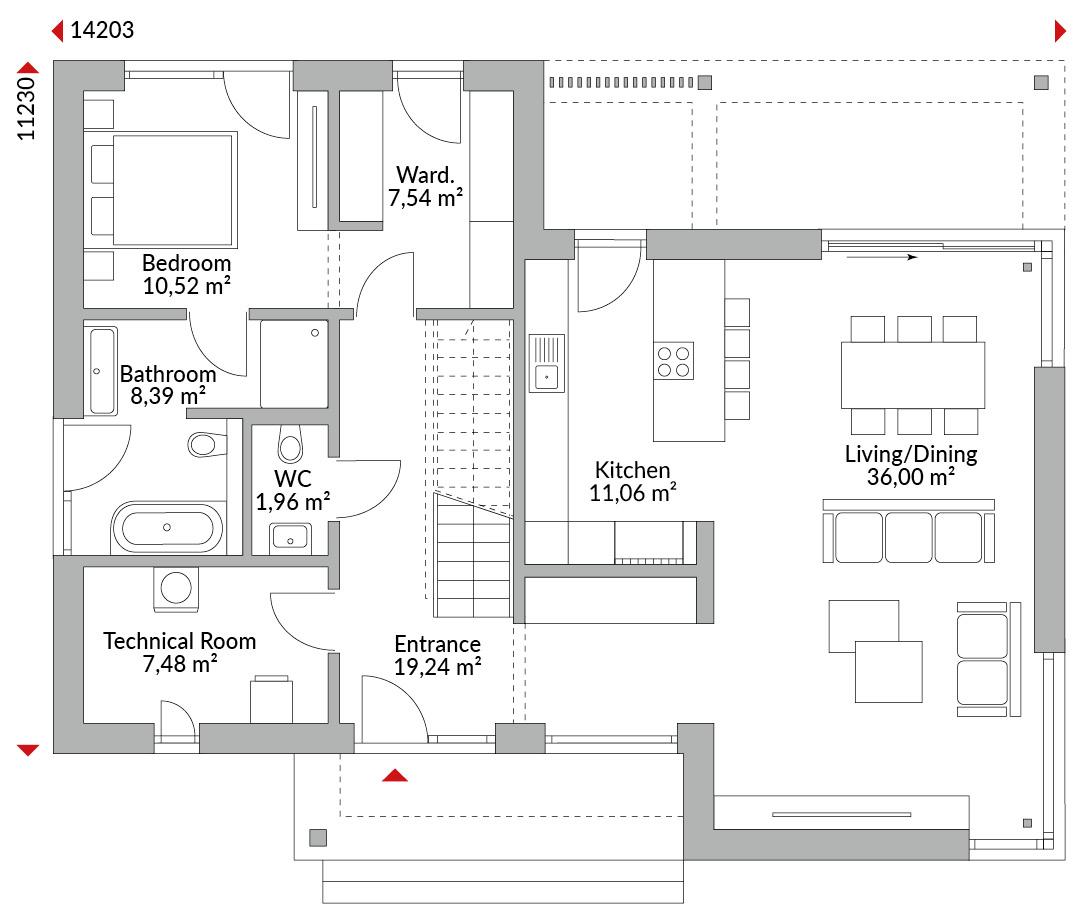
Two-storey house with entrance canopy on the higher front door and corner bay window; entrance with staircase; open-plan living/dining area with floor-to-ceiling glazing and sliding doors to the terrace; kitchen with peninsula hob; technical room; WC; master bedroom with walk-in wardrobe/dressing area and en-suite bathroom; open landing; two single bedrooms with walk-in wardrobe areas; study/office; family bathroom with storage; hipped roof with wide eaves of 60cms; hipped roof with 22° roof pitch.
*Photo shows building with individual changes.

Floor plans
Complete plan of all floors with area
Welcome to S-Line from Danwood, the next level for quality self-build and design. This exclusive range stands out, not only with its unique architecture, but also with its special functional design, which provides comfort and easy living in every space. Each home in S-Line is characterised by a number of special features to ensure a luxurious living experience.

Friends and family think it’s a beautiful house. We’re very lucky to have such a beautiful home to share with our grandchildren and family. Yes, it’s our forever home, definitely.