Glass and light
With its distinctive glass facade and roof, it's as if the treetops, clouds and stars are within reach in this fabulous Vision 207. Climbing the stairs to the first floor is a delight in itself.
The glass facade and a glass roof form a box of glass and light at the end of a beautiful staircase providing a unique sense of space.
*Photo shows building with individual changes.

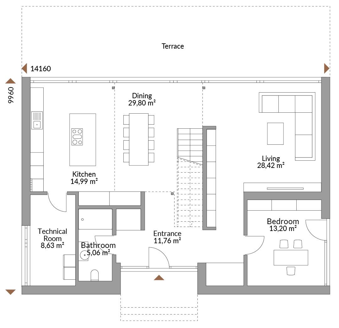
Floor plans
Complete plan of all floors with area






Friends and family think it’s a beautiful house. We’re very lucky to have such a beautiful home to share with our grandchildren and family. Yes, it’s our forever home, definitely.