One-and-a-half-storey house with an entrance canopy on the higher front door; three bedrooms on the upper floor; master en-suite bedroom with walk-in wardrobe, double sinks, and free-standing bathtub and shower; second bathroom on the upper floor with shower; two storage rooms; floor-to-ceiling glazing on the gable windows at the garden side; separate studio on the ground floor. The higher ground floor with raised floor-to-ceiling glazing is designed as an open-plan kitchen/living/dining room with sliding doors to the terrace; pantry; technical room; hallway with cloakroom; guest WC with shower; knee wall height 150cms; gable roof with wide eaves of 60cms on the garden-side gable; 38° roof pitch.
*Photo shows building with individual changes.

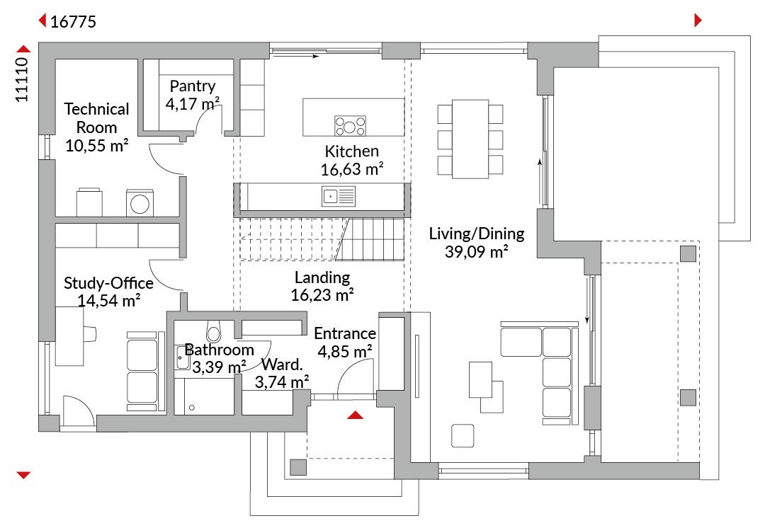
Floor plans
Complete plan of all floors with area
Welcome to S-Line from Danwood, the next level for quality self-build and design. This exclusive range stands out, not only with its unique architecture, but also with its special functional design, which provides comfort and easy living in every space. Each home in S-Line is characterised by a number of special features to ensure a luxurious living experience.

Friends and family think it’s a beautiful house. We’re very lucky to have such a beautiful home to share with our grandchildren and family. Yes, it’s our forever home, definitely.