One-and-a-half-storey house with four bedrooms, walk-in wardrobe area, open-plan kitchen, bathroom, guest WC, technical room, entrance hall and integrated carport with entrance canopy and terrace roof. Offset mono-pitch roofs with 25° pitch. Knee wall heights: 1.75 m and 1.424 m. Carport with flat roof.
*Photo shows building with individual changes.

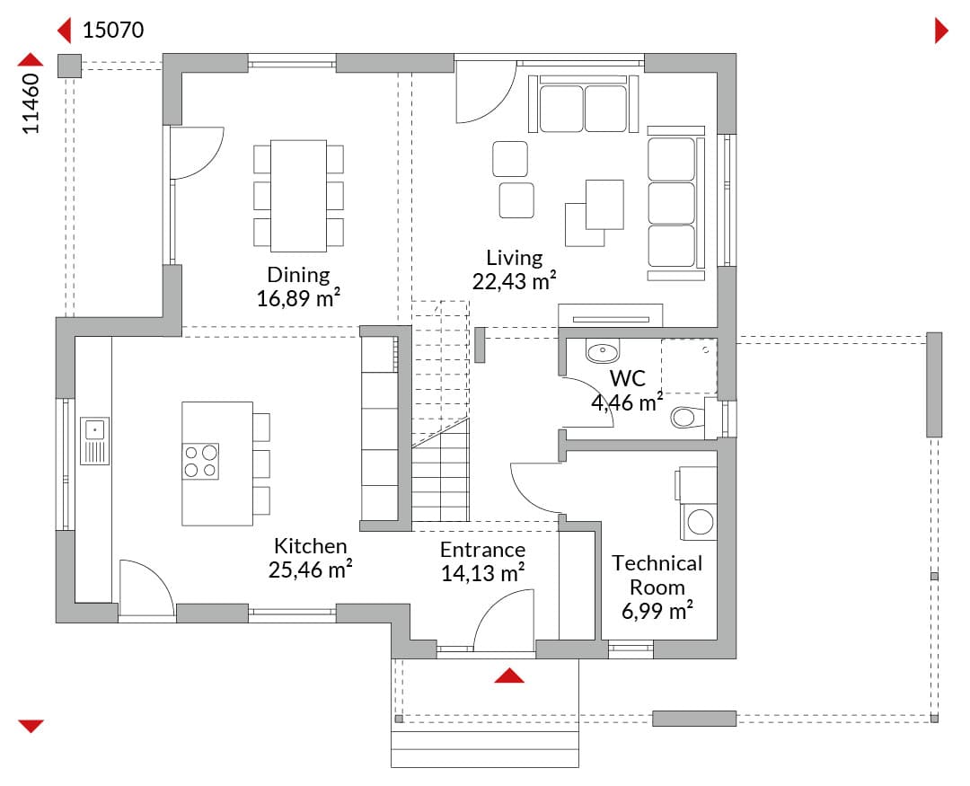
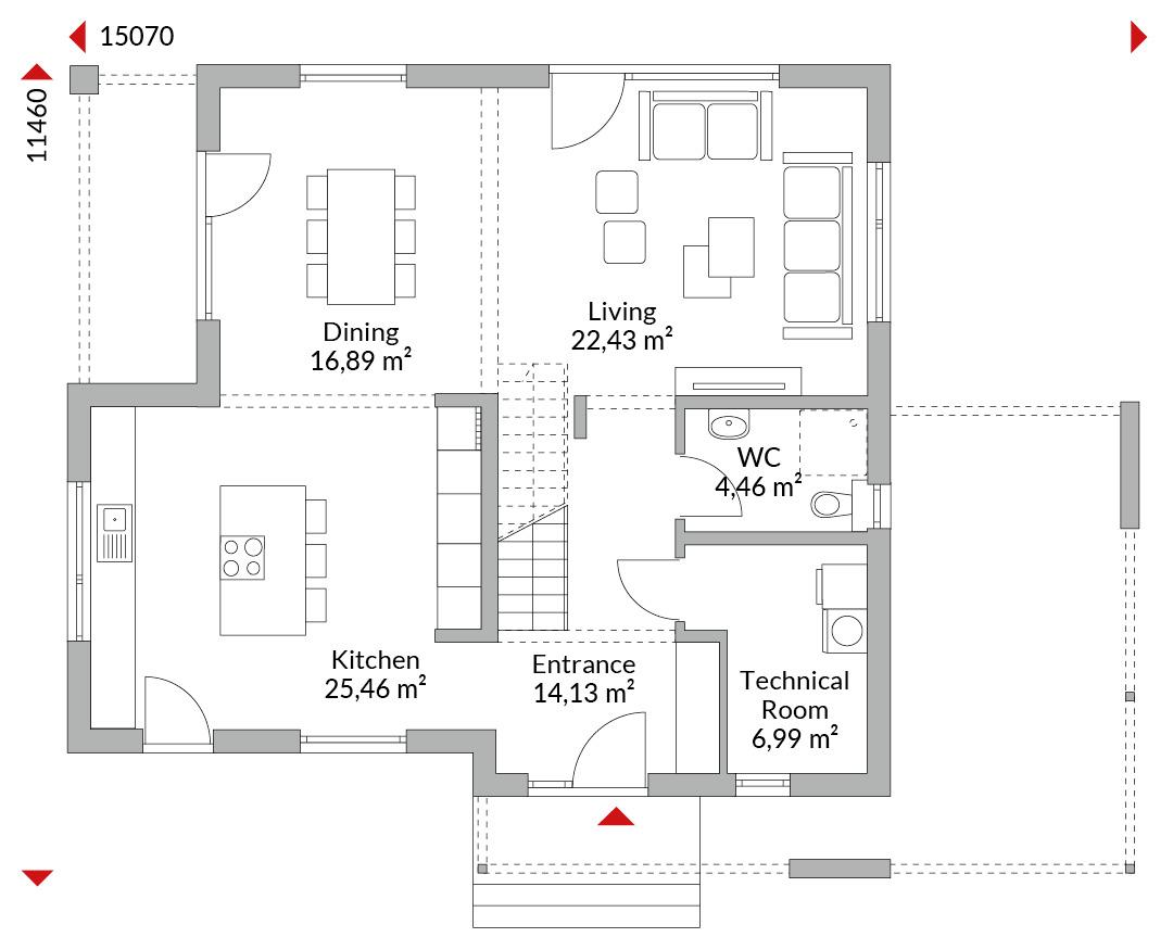
Floor plans
Complete plan of all floors with area
Choose from over 140 ready-to-move-in house designs. Whether it's a bungalow, 1.5-storey or 2-storey city villa, every energy-efficient house from Dan-Wood can be individualised to suit your requirements. We've already built 18,000 houses, clear evidence of our customers' trust in this range, which also includes prefabricated garages and carports.

Friends and family think it’s a beautiful house. We’re very lucky to have such a beautiful home to share with our grandchildren and family. Yes, it’s our forever home, definitely.