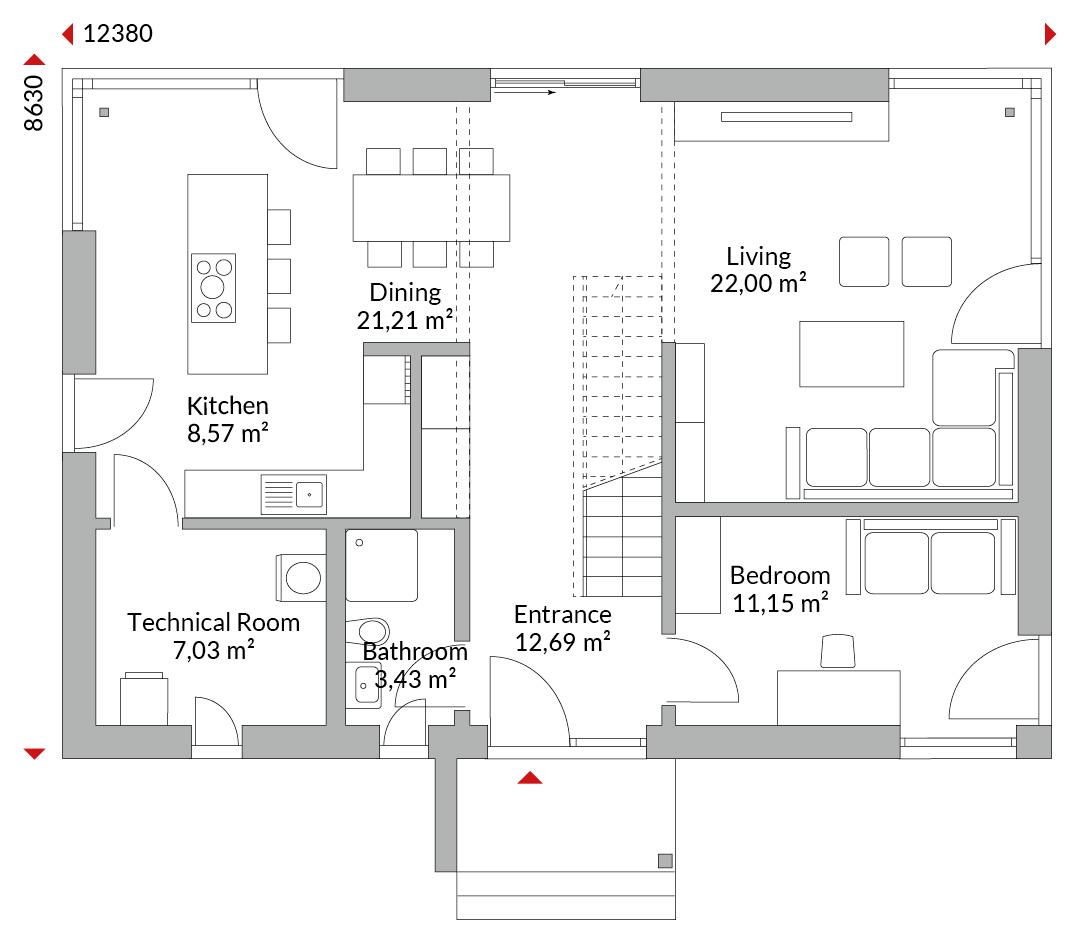
One-and-a-half-storey house with covered entrance over elevated front door. Raised ground floor with taller windows in the dining area, designed as open-plan kitchen connected to the adjacent living/dining space with corner glazing in the dining area and living room, plus sliding doors to the terrace and garden. Separate study suitable for guests or use as a home office, guest WC. Three bedrooms, two with walk-in wardrobe areas. One bedroom with en-suite bathroom and walk-in wardrobe area. Additional shower room and storage room. Technical room, entrance hall and hallway. Gable roof with wide eaves (60 cm), 25° pitch. Knee wall height: 2.00 m.
*Photo shows building with individual changes.

Floor plans
Complete plan of all floors with area
Welcome to S-Line from Danwood, the next level for quality self-build and design. This exclusive range stands out, not only with its unique architecture, but also with its special functional design, which provides comfort and easy living in every space. Each home in S-Line is characterised by a number of special features to ensure a luxurious living experience.

Friends and family think it’s a beautiful house. We’re very lucky to have such a beautiful home to share with our grandchildren and family. Yes, it’s our forever home, definitely.