One-and-a-half-storey house with entrance canopy over elevated front door and two bedrooms on the upper floor. Master bedroom with large walk-in wardrobe area. Raised ground floor with corner glazing and taller windows, designed as open-plan kitchen/living/dining area with sliding doors to the terrace. Guest WC with shower, bathroom with bathtub, shower and double vanity unit, technical room, entrance hall and hallway. Gable roof with wide eaves (60 cm), 40° pitch. Knee wall height: 1.00 m.
*Photo shows building with individual changes.

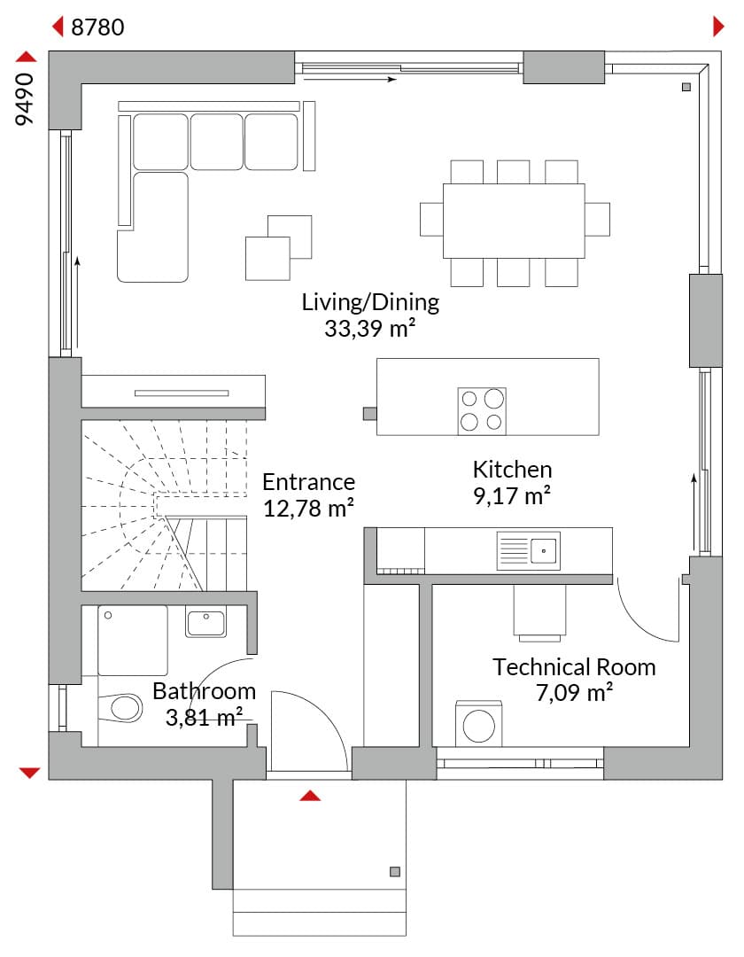
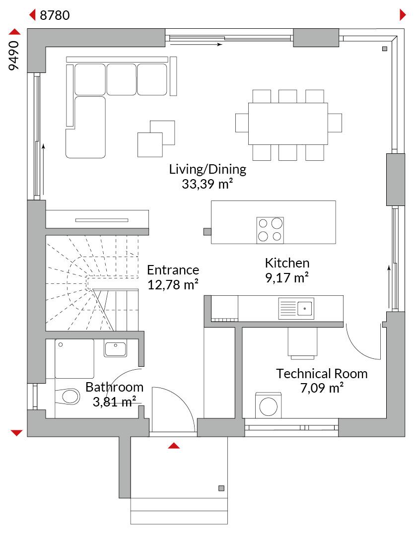
Floor plans
Complete plan of all floors with area
Welcome to S-Line from Danwood, the next level for quality self-build and design. This exclusive range stands out, not only with its unique architecture, but also with its special functional design, which provides comfort and easy living in every space. Each home in S-Line is characterised by a number of special features to ensure a luxurious living experience.

Friends and family think it’s a beautiful house. We’re very lucky to have such a beautiful home to share with our grandchildren and family. Yes, it’s our forever home, definitely.